Skip to main content
info@holzbinder.ru
+7 (499) 340-6-777
Москва: Мякинино
+7 (812) 628 6 777
Санкт-Петербург: Старая Деревня

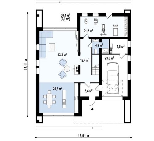
Проект ДД123

 
  • Площадь
    238,7 м2
  • Этажность
    2 этажа
  • Размеры
    15,11 х 13,91 м
  • Спальни
    3
  • Санузлы
    3

Планировка

Перепланировка и внесение любых изменений в проект - бесплатно!

Гарантия
15 лет
Подробности у нашего менеджера
  • Собственный технадзор. Двойной контроль качества. 15 лет гарантия на коробку дома - прописана в договоре.

  • Северный лес и собственное производство - без посредников и переплат.
  • Выйдем на строительство в течении недели.

  • Соберем данные о состоянии почвы, уровне грунтовых вод и предложим Вам оптимальный тип фундамента. Выезд на пробное бурение - бесплатно!

Базовая комплектация

  • Проектная документация

    Архитектурный раздел (АР) + Конструктивный раздел (КР). Поэтажные планы, фасады, разрезы, 3D виды. План фундамента.

    План раскладки балок межэтажного перекрытия. План стропил. Развертки стен.

  • Фундамент

    Уплотненное песчаное основание толщиной не менее 200 мм, по гео-текстилю. Гидроизоляционные и утеплительные работы по проекту. Плита толщиной 200 мм, ростверк по плите 400*150 мм. Армирование плиты сеткой 200*200 мм в два уровня из арматуры 12 мм а500с, армирование ростверка из арматуры 12 мм. Опалубочные работы. Уход за свежепринятой бетонной смесью.

    Устройство закладных под вводы в дом, а так же устройство канализационной системы дома, в том числе горизонтальной магистрали Д160мм и выводом вертикальных стояков Д110.

  • Стены и перекрытие

    Стеновые материалы на выбор: газоблок Bonolit или теплая керамика Porotherm.

    Устройство наружных, внутренних несущих стен и перегородок из проектных материалов. Устройство армопоясов, балок, перемычек по проектным значениям. Устройство монолитных перекрытий и сборных перекрытий из заводских плит перекрытия по проектным значениям.

  • Кровля

    Устройство чердачного перекрытия (потолок второго этажа), утепление по стропильной части, либо по горизонтальному перекрытию верхнего этажа, паро, гидро-ветроизоляционные мембраны, базальтовый плитный (50-100х600х800 мм) утеплитель, устройство обрешетки и контр обрешетки, подкладочных ковров.

    Устройство лобовой части кровли и подготовка под софиты.

    Финишное покрытие любого типа, заложенного проектом.

  • Окна, двери и прочее

    Лестница на второй этаж (если присутствует в проекте) исполняется техническая. Входная группа комплектуется ступенями. Дверные и оконные проемы выполняются с ройками. Двери и окна не входят в данную стоимость и заказываются отдельно по желанию заказчика. Наружная и внутренняя отделка не выполняется.

  • Прочее

    Бесплатный выезд прораба на участок Заказчика для предварительного осмотра участка, подъездных путей, обсуждения предпочтений Заказчика, дальнейшее осмечивание проекта. Строительная бытовка для проживания рабочих входит в стоимость.

    Снабжение строительства от 5 до 15% от стоимости материалов.

Есть вопросы или предложения?
Напишите нам!
Контакты
Москва
  • ул.4-я Мякининская, д.25
  • Метро Мякинино

  • +7 (499) 340-6-777
  • 10:00 - 19:00
  • info@holzbinder.ru
Санкт-Петербург
  • ул. Торфяная дорога д.17
  • Метро Старая Деревня
  • +7 (812) 628-6-777
  • 11:00 - 18:00