Проект ДД21
15 лет
-             
    
        Собственный технадзор. Двойной контроль качества. 15 лет гарантия на коробку дома - прописана в договоре. 
-             
    
        Северный лес и собственное производство - без посредников и переплат.
-             
    
        Выйдем на строительство в течении недели. 
-             
    
        Соберем данные о состоянии почвы, уровне грунтовых вод и предложим Вам оптимальный тип фундамента. Выезд на пробное бурение - бесплатно! 
Базовая комплектация
- 
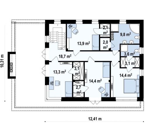
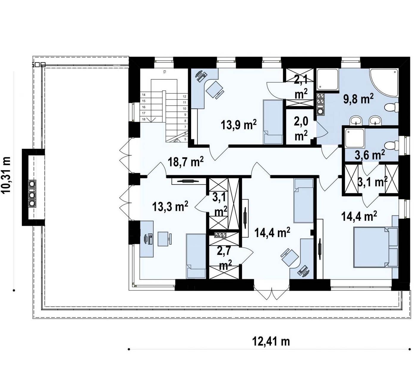
      Проектная документацияАрхитектурный раздел (АР) + Конструктивный раздел (КР). Поэтажные планы, фасады, разрезы, 3D виды. План фундамента. План раскладки балок межэтажного перекрытия. План стропил. Развертки стен. 
- 
      ФундаментУплотненное песчаное основание толщиной не менее 200 мм, по гео-текстилю. Гидроизоляционные и утеплительные работы по проекту. Плита толщиной 200 мм, ростверк по плите 400*150 мм. Армирование плиты сеткой 200*200 мм в два уровня из арматуры 12 мм а500с, армирование ростверка из арматуры 12 мм. Опалубочные работы. Уход за свежепринятой бетонной смесью. Устройство закладных под вводы в дом, а так же устройство канализационной системы дома, в том числе горизонтальной магистрали Д160мм и выводом вертикальных стояков Д110. 
- 
      Стены и перекрытиеСтеновые материалы на выбор: газоблок Bonolit или теплая керамика Porotherm. Устройство наружных, внутренних несущих стен и перегородок из проектных материалов. Устройство армопоясов, балок, перемычек по проектным значениям. Устройство монолитных перекрытий и сборных перекрытий из заводских плит перекрытия по проектным значениям. 
- 
      КровляУстройство чердачного перекрытия (потолок второго этажа), утепление по стропильной части, либо по горизонтальному перекрытию верхнего этажа, паро, гидро-ветроизоляционные мембраны, базальтовый плитный (50-100х600х800 мм) утеплитель, устройство обрешетки и контр обрешетки, подкладочных ковров. Устройство лобовой части кровли и подготовка под софиты. Финишное покрытие любого типа, заложенного проектом. 
- 
      Окна, двери и прочееЛестница на второй этаж (если присутствует в проекте) исполняется техническая. Входная группа комплектуется ступенями. Дверные и оконные проемы выполняются с ройками. Двери и окна не входят в данную стоимость и заказываются отдельно по желанию заказчика. Наружная и внутренняя отделка не выполняется. 
- 
      ПрочееБесплатный выезд прораба на участок Заказчика для предварительного осмотра участка, подъездных путей, обсуждения предпочтений Заказчика, дальнейшее осмечивание проекта. Строительная бытовка для проживания рабочих входит в стоимость. Снабжение строительства от 5 до 15% от стоимости материалов. 
 
 
 
 
 
