Skip to main content
info@holzbinder.ru
+7 (499) 340-6-777
Москва: Мякинино
+7 (812) 628 6 777
Санкт-Петербург: Старая Деревня
 
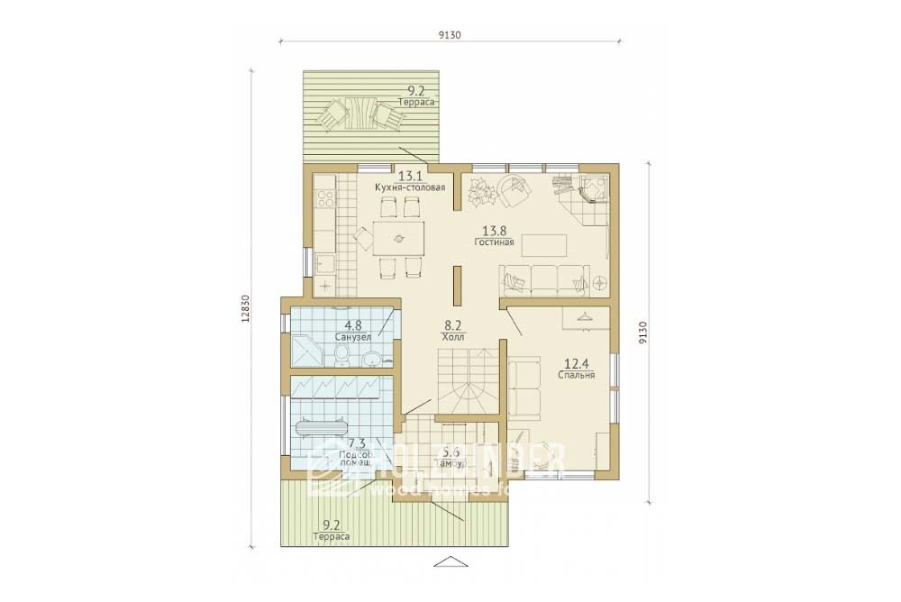
  • Площадь
    63 м2
  • Этажность
    1 этаж
  • Размеры
    6х10
  • Спальни
    2
  • Санузлы
    1

Планировка

Перепланировка и внесение любых изменений в проект - бесплатно!

Гарантия
7 лет
Подробности у нашего менеджера
  • Трёхуровневый контроль качества работ с реальной гарантией в 7 лет.

  • Северный лес и собственное производство - без посредников и переплат.
  • Поэтапная оплата строительства, предоплата 0%, строильство начнем уже через 7 дней.

  • Соберем данные о состоянии почвы, уровне грунтовых вод и предложим Вам оптимальный тип фундамента. Выезд на пробное бурение - БЕСПЛАТНО!

Комплектации

Optima

Дом с наружной отделкой, но без внутренней.

  • сечение стоек внешних стен дома – 50*150 мм
  • обвязка свай – составной брус 150*200 мм
  • утепление внешних стен и потолков последнего этажа 150 мм
  • внешняя отделка стен – виниловый сайдинг
  • полы внутри дома – фанера ФК 15 мм
Фундамент
  • бетонные забивные сваи 150*150*3000 мм с оголовками 250*250 мм, монтаж установкой на гусеничном ходу, средний шаг 2 м
  • пробное бурение – во всех случаях
  • гидроизоляция между оголовками свай и обвязочным брусом – 2 слоя гидростеклоизола
Силовой каркас
  • антисептирование – весь силовой каркас полностью, стропильная часть, системы наружной обрешетки, бруски пола
  • обвязка свай – составной брус 150*200 мм (3 скрепленных доски 50*200 мм) по периметру дома и внутри контура дома
  • крепление обвязочного бруса к оголовкам свай – «глухарями» (через шайбы) во все заводские отверстия оголовков, на которые попадает брус
  • расположение балок пола 1 этажа – сверху обвязочного бруса
  • сечение стоек внешних стен дома – 50*150 мм
  • сечение стоек внутренних перегородок – 50*150 мм (несущих) и 50*100 мм (не несущих)
  • типичный шаг стоек стен – 640 мм (590 мм между стойками)
  • сечение балок пола 1 этажа – 50*200 мм
  • сечение балок пола межэтажного перекрытия – 100*200 мм (2 скрепленных доски 50*200 мм)
  • укосы – доска 50*150 мм, впиленная в стойки внешних и внутренних несущих стен под углом, близким к 45 градусам
  • впиленные ригели в верхней части щитов – на всех внешних и внутренних несущих стенах (кроме фронтонов 2 этажа)
  • верхняя горизонтальная перевязка щитов внешних и внутренних несущих стен – тройная (двойная «плашмя» + ригель «ребром»)
  • нижняя горизонтальная перевязка щитов всех внутренних несущих стен дома – двойная («плашмя»)
  • усиление всех оконных и дверных проемов – двойные боковые стойки, упор горизонтальных досок, хедер над проемом (если умещается по высоте)
  • применение конструктивного элемента «теплый угол» – все углы внешних стен дома
  • двойной коньковый брус – во всех двускатных крышах
  • материал каркаса дома – доска антисептированная полноразмерная 1 сорт (сосна, ель)
  • крепеж каркаса – оцинкованные гладкие гвозди
  • все укосы каркаса прибиваются к стойкам по 3 гвоздя 120 мм в каждую стойку
Утепление
  • плитный базальтовый утеплитель плотностью 50 кг/м3 – везде
  • утепление внешних стен – 150 мм
  • утепление потолков последнего этажа – 150 мм
  • утепление полов 1 этажа – 200+50=250 мм
  • звукоизоляция межэтажного перекрытия – 200+50=250 мм
  • звукоизоляция перегородок – 150 мм и 100 мм
Пленки
  • пароизоляция внешних стен, полов 1 этажа и потолка последнего этажа изнутри помещений – пленка "Изоспан D" с проклейкой стыков двухсторонним скотчем
  • ветроизоляция внешних стен – трехслойная пленка-мебрана "Изоспан AQ proff"
  • подкровельная пленка – трехслойная пленка-мебрана "Изоспан AQ proff" (мансардная крыша) или пленка "Ютафол Д 96" (холодный чердак)
Фасады
  • внешняя отделка стен – виниловый однотонный сайдинг "Docke Premium Брус D6S" (цвет выбирает Заказчик) «под дерево» горизонтально по вертикальным рейкам 25*100 мм (вентилируемый фасад) с шагом 400 мм (300 мм между рейками)
  • внешняя отделка наружных углов дома – пластиковый внешний угол для винилового сайдинга "Docke"/"Grand Line" (цвет выбирает Заказчик)
  • внешняя отделка откосов окон – белый пластиковый околооконный профиль для винилового сайдинга "Docke"/"Grand Line"
  • внешняя отделка лобовой доски – белая пластиковая J-фаска для винилового сайдинга "Docke"/"Grand Line"
  • декоративные деревянные «лучи» под коньком на каждом фронтоне фасадов – да
  • стальная оцинкованная мелкоячеистая сетка с нижнего торца пространства вентилируемого фасада – да
  • отделка цоколя – нет
Кровля
  • металлочерепица 0,5 мм "Grand Line Satin", профиль Classic (цвет выбирает Заказчик)
  • тип конька крыши – прямой (цвет выбирает Заказчик)
  • обрешетка крыши – доска 25*100 мм с шагом 350 мм (250 мм между досками)
  • контробрешетка крыши – доска 50*100 мм (мансардная крыша) или 25*100 мм (холодный чердак)
  • карнизы крыши – объемные вентилируемые
  • подшив карнизных свесов крыши – белые пластиковые софиты "Docke"/"Grand Line" с полной перфорацией
  • вынос карнизных свесов крыши за пределы стен – 500 мм (в горизонтальной плоскости)
  • вытяжки из санузлов, из кухни и фановая вытяжка – пластиковые «грибки» (проходы через кровлю) + утепленная вентиляционная гофра в стенах
Внутренняя отделка
  • внутренняя отделка стен и потолков – нет
Полы
  • полы внутри дома – фанера ФК 15 мм по брускам 50*100 мм с шагом 380 мм (280 мм между брусками)
  • черновые полы (сплошной подшив по балкам пола 1 этажа снизу) – доска обрезная 25*150 мм, сверху трехслойная пленка-мебрана "Изоспан AQ proff"
Терраса
  • полы на террасах – строганная сухая доска 35*140 мм (сосна, ель) с зазором
  • перила на террасах – из строганной сухой доски 35*140 мм (сосна, ель; горизонтально, либо вертикально, либо крест-накрест, либо рисунком)
  • ступеньки с террас – из строганной сухой доски 45*190 мм (сосна, ель)
  • опорные столбы на террасах – вертикальный составной брус 150*150 мм (3 скрепленных доски 50*150 мм), отделанный вертикальной имитацией бруса 16*140 мм и деревянным уголком 50*50 мм
Окна
  • окна – пластиковые белые "Rehau Blitz" (60 мм, 3 камеры) с двухкамерным стеклопакетом (3 стекла, 32 мм, формула стеклопакета 4м1-10-4м1-10-4Ист) и с фурнитурой "Roto NX"
  • энергосберегающий стеклопакет (i-стекло) – да
  • щелевое проветривание (микропроветривание) – да
  • москитные сетки – на всех открывающихся створках окон
  • ограничители открывания окон («крокодильчики») – на всех открывающихся створках окон
  • оконные ручки – "Rehau Idea"
  • оконные рамы «утапливаются» в оконные проемы, образуются откосы снаружи дома
  • отливы окон – металлические окрашенные (цвет выбирает Заказчик)
  • полное пропенивание оконных отливов – да
  • подоконники – нет
Лестница (кроме одноэтажных домов)
  • лестница межэтажная сухая из строганной сухой доски 45*190 мм (сосна, ель) на крепеже, с перилами – нет
  • лестница межэтажная клееная (лиственница) с балясинами, перилами и подступенками – нет
Двери
  • межкомнатные двери – нет
  • уличная дверь – металлическая российского производства утепленная "Йошкар-Ола Троя" (цвет выбирает Заказчик)
Прочее
  • закладные (гильзы) под ввод воды и электричества в дом – на усмотрение Заказчика
  • предоставление бытовки (при необходимости) – БЕСПЛАТНО
  • транспортировка бытовки (манипулятором) – БЕСПЛАТНО до 150 км от МКАД
  • уборка в доме и на участке – включена
  • вывоз строительного мусора – включен в объеме 1 мусорного контейнера (8 м3)
Comfort

Дом с наружной отделкой, но без внутренней.

  • сечение стоек внешних стен дома – 50*150 мм
  • обвязка свай – составной брус 200*200 мм
  • утепление внешних стен и потолков последнего этажа 200 мм
  • перекрестный каркас внешних стен дома – 50*100 мм
  • внешняя отделка стен – металлический сайдинг "Grand Line"
  • полы внутри дома – фанера ФК 15 мм
Фундамент
  • бетонные забивные сваи 150*150*3000 мм с оголовками 250*250 мм, монтаж установкой на гусеничном ходу, средний шаг 2 м
  • пробное бурение – во всех случаях
  • гидроизоляция между оголовками свай и обвязочным брусом – 2 слоя гидростеклоизола
Силовой каркас
  • антисептирование – весь силовой каркас полностью, стропильная часть, системы наружной обрешетки, бруски пола
  • обвязка свай – составной брус 200*200 мм (4 скрепленных доски 50*200 мм) по периметру дома, внутри контура дома составной брус 150*200 мм (3 скрепленных доски 50*200 мм)
  • крепление обвязочного бруса к оголовкам свай – «глухарями» (через шайбы) во все заводские отверстия оголовков, на которые попадает брус
  • расположение балок пола 1 этажа – сверху обвязочного бруса
  • сечение стоек внешних стен дома – 50*150 мм
  • перекрестный каркас внешних стен дома – 50*100 мм горизонтально (с наружной стороны дома)
  • сечение стоек внутренних перегородок – 50*150 мм (несущих) и 50*100 мм (не несущих)
  • типичный шаг стоек стен – 640 мм (590 мм между стойками)
  • сечение балок пола 1 этажа – 50*200 мм
  • сечение балок пола межэтажного перекрытия – 100*200 мм (2 скрепленных доски 50*200 мм)
  • укосы – доска 50*150 мм, впиленная в стойки внешних и внутренних несущих стен под углом, близким к 45 градусам
  • впиленные ригели в верхней части щитов – на всех внешних и внутренних несущих стенах (кроме фронтонов 2 этажа)
  • верхняя горизонтальная перевязка щитов внешних и внутренних несущих стен – тройная (двойная «плашмя» + ригель «ребром»)
  • нижняя горизонтальная перевязка щитов всех внутренних несущих стен дома – двойная («плашмя»)
  • усиление всех оконных и дверных проемов – двойные боковые стойки, упор горизонтальных досок, хедер над проемом (если умещается по высоте)
  • применение конструктивного элемента «теплый угол» – все углы внешних стен дома
  • двойной коньковый брус – во всех двускатных крышах
  • материал каркаса дома – доска антисептированная полноразмерная 1 сорт (сосна, ель)
  • крепеж каркаса – оцинкованные гладкие гвозди
  • все укосы каркаса прибиваются к стойкам по 3 гвоздя 120 мм в каждую стойку
Утепление
  • плитный базальтовый утеплитель плотностью 50 кг/м3 – везде
  • утепление внешних стен – 150+50=200 мм
  • утепление потолков последнего этажа – 200 мм
  • утепление полов 1 этажа – 200+50=250 мм
  • звукоизоляция межэтажного перекрытия – 200+50=250 мм
  • звукоизоляция перегородок – 150 мм и 100 мм
Пленки
  • пароизоляция внешних стен, полов 1 этажа и потолка последнего этажа изнутри помещений – пленка "Изоспан D" с проклейкой стыков двухсторонним скотчем
  • ветроизоляция внешних стен – трехслойная пленка-мебрана "Изоспан AQ proff"
  • подкровельная пленка – трехслойная пленка-мебрана "Изоспан AQ proff" (мансардная крыша) или пленка "Ютафол Д 96" (холодный чердак)
Фасады
  • внешняя отделка стен – металлический сайдинг "Grand Line" "ЭкоБрус"/"Квадро брус" 0,45 PE моноцвет (цвет выбирает Заказчик из однотонных) горизонтально по вертикальным рейкам 25*100 мм (вентилируемый фасад) с шагом 400 мм (300 мм между рейками)
  • внешняя отделка наружных углов дома – металлический внешний угол 0,45 PE моноцвет (цвет выбирает Заказчик из однотонных)
  • внешняя отделка откосов окон – металлический околооконный профиль 0,45 PE моноцвет (цвет выбирает Заказчик из однотонных)
  • внешняя отделка лобовой доски – металлическая J-фаска 0,45 PE моноцвет (цвет выбирает Заказчик из однотонных)
  • декоративные деревянные «лучи» под коньком на каждом фронтоне фасадов – да
  • стальная оцинкованная мелкоячеистая сетка с нижнего торца пространства вентилируемого фасада – да
  • отделка цоколя – нет
Кровля
  • металлочерепица 0,5 мм "Grand Line Satin", профиль Classic (цвет выбирает Заказчик)
  • тип конька крыши – прямой (цвет выбирает Заказчик)
  • обрешетка крыши – доска 25*100 мм с шагом 350 мм (250 мм между досками)
  • контробрешетка крыши – доска 50*100 мм (мансардная крыша) или 25*100 мм (холодный чердак)
  • карнизы крыши – объемные вентилируемые
  • подшив карнизных свесов крыши – пластиковые софиты "Docke"/"Grand Line" с полной перфорацией, моноцвет (цвет выбирает Заказчик из однотонных)
  • вынос карнизных свесов крыши за пределы стен – 500 мм (в горизонтальной плоскости)
  • вытяжки из санузлов, из кухни и фановая вытяжка – пластиковые «грибки» (проходы через кровлю) + утепленная вентиляционная гофра в стенах
  • водостоки – пластиковые "Docke Standard" на металлических крюках (цвет выбирает Заказчик)
Внутренняя отделка
  • внутренняя отделка стен и потолков – нет
Полы
  • полы внутри дома – фанера ФК 15 мм по брускам 50*100 мм с шагом 380 мм (280 мм между брусками)
  • черновые полы (сплошной подшив по балкам пола 1 этажа снизу) – доска обрезная 25*150 мм, сверху трехслойная пленка-мебрана "Изоспан AQ proff"
Терраса
  • полы на террасах – строганная сухая доска 35*140 мм (сосна, ель) с зазором
  • перила на террасах – из строганной сухой доски 35*140 мм (сосна, ель; горизонтально, либо вертикально, либо крест-накрест, либо рисунком)
  • ступеньки с террас – из строганной сухой доски 45*190 мм (сосна, ель)
  • опорные столбы на террасах – вертикальный составной брус 150*150 мм (3 скрепленных доски 50*150 мм), отделанный вертикальной имитацией бруса 16*140 мм и деревянным уголком 50*50 мм
Окна
  • окна – пластиковые белые "Rehau Delight" (70 мм, 5 камер) с двухкамерным стеклопакетом (3 стекла, 40 мм, формула стеклопакета 4м1-14-4м1-14-4Ист) и с фурнитурой "Roto NX"
  • шпросы (8 мм, белые) внутри стеклопакета – да
  • энергосберегающий стеклопакет (i-стекло) – да
  • щелевое проветривание (микропроветривание) – да
  • москитные сетки – на всех открывающихся створках окон
  • ограничители открывания окон («крокодильчики») – на всех открывающихся створках окон
  • оконные ручки – "Rehau Idea"
  • оконные рамы «утапливаются» в оконные проемы, образуются откосы снаружи дома
  • отливы окон – металлические окрашенные (цвет выбирает Заказчик)
  • полное пропенивание оконных отливов – да
  • подоконники – нет
Лестница (кроме одноэтажных домов)
  • лестница межэтажная сухая из строганной сухой доски 45*190 мм (сосна, ель) на крепеже, с перилами – нет
  • лестница межэтажная клееная (лиственница) с балясинами, перилами и подступенками – нет
Двери
  • межкомнатные двери – нет
  • уличная дверь – металлическая российского производства утепленная с терморазрывом "Термаль" (цвет выбирает Заказчик)
Прочее
  • закладные (гильзы) под ввод воды и электричества в дом – на усмотрение Заказчика
  • предоставление бытовки (при необходимости) – БЕСПЛАТНО
  • транспортировка бытовки (манипулятором) – БЕСПЛАТНО до 150 км от МКАД
  • уборка в доме и на участке – включена
  • вывоз строительного мусора – включен в объеме 1 мусорного контейнера (8 м3)
Classic

Дом с наружной отделкой, но без внутренней.

  • сечение стоек внешних стен дома – 50*200 мм
  • обвязка свай – составной брус 200*200 мм
  • утепление внешних стен и потолков последнего этажа 250 мм
  • перекрестный каркас внешних стен дома – 50*100 мм
  • внешняя отделка стен – фиброцементный сайдинг "Decover"
  • полы внутри дома – фанера ФК 18 мм
Фундамент
  • бетонные забивные сваи 150*150*3000 мм с оголовками 250*250 мм, монтаж установкой на гусеничном ходу, средний шаг 2 м
  • пробное бурение – во всех случаях
  • гидроизоляция между оголовками свай и обвязочным брусом – 2 слоя гидростеклоизола
Силовой каркас
  • антисептирование – весь силовой каркас полностью, стропильная часть, системы наружной обрешетки, бруски пола
  • обвязка свай – составной брус 200*200 мм (4 скрепленных доски 50*200 мм) по периметру дома, внутри контура дома составной брус 150*200 мм (3 скрепленных доски 50*200 мм)
  • крепление обвязочного бруса к оголовкам свай – «глухарями» (через шайбы) во все заводские отверстия оголовков, на которые попадает брус
  • расположение балок пола 1 этажа – сверху обвязочного бруса
  • сечение стоек внешних стен дома – 50*150 мм
  • перекрестный каркас внешних стен дома – 50*100 мм горизонтально (с наружной стороны дома)
  • сечение стоек внутренних перегородок – 50*150 мм (несущих) и 50*100 мм (не несущих)
  • типичный шаг стоек стен – 640 мм (590 мм между стойками)
  • сечение балок пола 1 этажа – 50*200 мм
  • сечение балок пола межэтажного перекрытия – 100*200 мм (2 скрепленных доски 50*200 мм)
  • укосы – доска 50*150 мм, впиленная в стойки внешних и внутренних несущих стен под углом, близким к 45 градусам
  • впиленные ригели в верхней части щитов – на всех внешних и внутренних несущих стенах (кроме фронтонов 2 этажа)
  • верхняя горизонтальная перевязка щитов внешних и внутренних несущих стен – тройная (двойная «плашмя» + ригель «ребром»)
  • нижняя горизонтальная перевязка щитов всех внутренних несущих стен дома – двойная («плашмя»)
  • усиление всех оконных и дверных проемов – двойные боковые стойки, упор горизонтальных досок, хедер над проемом (если умещается по высоте)
  • применение конструктивного элемента «теплый угол» – все углы внешних стен дома
  • двойной коньковый брус – во всех двускатных крышах
  • материал каркаса дома – доска антисептированная полноразмерная 1 сорт (сосна, ель)
  • крепеж каркаса – оцинкованные гладкие гвозди
  • все укосы каркаса прибиваются к стойкам по 3 гвоздя 120 мм в каждую стойку
Утепление
  • плитный базальтовый утеплитель плотностью 50 кг/м3 – везде
  • утепление внешних стен – 150+50=200 мм
  • утепление потолков последнего этажа – 200 мм
  • утепление полов 1 этажа – 200+50=250 мм
  • звукоизоляция межэтажного перекрытия – 200+50=250 мм
  • звукоизоляция перегородок – 150 мм и 100 мм
Пленки
  • пароизоляция внешних стен, полов 1 этажа и потолка последнего этажа изнутри помещений – пленка "Изоспан D" с проклейкой стыков двухсторонним скотчем
  • ветроизоляция внешних стен – трехслойная пленка-мебрана "Изоспан AQ proff"
  • подкровельная пленка – трехслойная пленка-мебрана "Изоспан AQ proff" (мансардная крыша) или пленка "Ютафол Д 96" (холодный чердак)
Фасады
  • внешняя отделка стен – металлический сайдинг "Grand Line" "ЭкоБрус"/"Квадро брус" 0,45 PE моноцвет (цвет выбирает Заказчик из однотонных) горизонтально по вертикальным рейкам 25*100 мм (вентилируемый фасад) с шагом 400 мм (300 мм между рейками)
  • внешняя отделка наружных углов дома – металлический внешний угол 0,45 PE моноцвет (цвет выбирает Заказчик из однотонных)
  • внешняя отделка откосов окон – металлический околооконный профиль 0,45 PE моноцвет (цвет выбирает Заказчик из однотонных)
  • внешняя отделка лобовой доски – металлическая J-фаска 0,45 PE моноцвет (цвет выбирает Заказчик из однотонных)
  • декоративные деревянные «лучи» под коньком на каждом фронтоне фасадов – да
  • стальная оцинкованная мелкоячеистая сетка с нижнего торца пространства вентилируемого фасада – да
  • отделка цоколя – нет
Кровля
  • металлочерепица 0,5 мм "Grand Line Satin", профиль Classic (цвет выбирает Заказчик)
  • тип конька крыши – прямой (цвет выбирает Заказчик)
  • обрешетка крыши – доска 25*100 мм с шагом 350 мм (250 мм между досками)
  • контробрешетка крыши – доска 50*100 мм (мансардная крыша) или 25*100 мм (холодный чердак)
  • карнизы крыши – объемные вентилируемые
  • подшив карнизных свесов крыши – пластиковые софиты "Docke"/"Grand Line" с полной перфорацией, моноцвет (цвет выбирает Заказчик из однотонных)
  • вынос карнизных свесов крыши за пределы стен – 500 мм (в горизонтальной плоскости)
  • вытяжки из санузлов, из кухни и фановая вытяжка – пластиковые «грибки» (проходы через кровлю) + утепленная вентиляционная гофра в стенах
  • водостоки – пластиковые "Docke Standard" на металлических крюках (цвет выбирает Заказчик)
Внутренняя отделка
  • внутренняя отделка стен и потолков – нет
Полы
  • полы внутри дома – фанера ФК 15 мм по брускам 50*100 мм с шагом 380 мм (280 мм между брусками)
  • черновые полы (сплошной подшив по балкам пола 1 этажа снизу) – доска обрезная 25*150 мм, сверху трехслойная пленка-мебрана "Изоспан AQ proff"
Терраса
  • полы на террасах – строганная сухая доска 35*140 мм (сосна, ель) с зазором
  • перила на террасах – из строганной сухой доски 35*140 мм (сосна, ель; горизонтально, либо вертикально, либо крест-накрест, либо рисунком)
  • ступеньки с террас – из строганной сухой доски 45*190 мм (сосна, ель)
  • опорные столбы на террасах – вертикальный составной брус 150*150 мм (3 скрепленных доски 50*150 мм), отделанный вертикальной имитацией бруса 16*140 мм и деревянным уголком 50*50 мм
Окна
  • окна – пластиковые белые "Rehau Delight" (70 мм, 5 камер) с двухкамерным стеклопакетом (3 стекла, 40 мм, формула стеклопакета 4м1-14-4м1-14-4Ист) и с фурнитурой "Roto NX"
  • шпросы (8 мм, белые) внутри стеклопакета – да
  • энергосберегающий стеклопакет (i-стекло) – да
  • щелевое проветривание (микропроветривание) – да
  • москитные сетки – на всех открывающихся створках окон
  • ограничители открывания окон («крокодильчики») – на всех открывающихся створках окон
  • оконные ручки – "Rehau Idea"
  • оконные рамы «утапливаются» в оконные проемы, образуются откосы снаружи дома
  • отливы окон – металлические окрашенные (цвет выбирает Заказчик)
  • полное пропенивание оконных отливов – да
  • подоконники – нет
Лестница (кроме одноэтажных домов)
  • лестница межэтажная сухая из строганной сухой доски 45*190 мм (сосна, ель) на крепеже, с перилами – нет
  • лестница межэтажная клееная (лиственница) с балясинами, перилами и подступенками – нет
Двери
  • межкомнатные двери – нет
  • уличная дверь – металлическая российского производства утепленная с терморазрывом "Термаль" (цвет выбирает Заказчик)
Прочее
  • закладные (гильзы) под ввод воды и электричества в дом – на усмотрение Заказчика
  • предоставление бытовки (при необходимости) – БЕСПЛАТНО
  • транспортировка бытовки (манипулятором) – БЕСПЛАТНО до 150 км от МКАД
  • уборка в доме и на участке – включена
  • вывоз строительного мусора – включен в объеме 1 мусорного контейнера (8 м3)
Premium
Дом и с наружной, и с внутренней отделкой
  • сечение стоек внешних стен дома – 50*150 мм
  • обвязка свай – составной брус 150*200 мм
  • утепление внешних стен и потолков последнего этажа 150 мм
  • внешняя отделка стен – виниловый сайдинг
  • полы внутри дома – фанера ФК 15 мм
  • внутренняя отделка стен и потолков – имитация бруса 16*140 мм
  • межкомнатные двери – филенчатые из массива сосны
Фундамент
  • бетонные забивные сваи 150*150*3000 мм с оголовками 250*250 мм, монтаж установкой на гусеничном ходу, средний шаг 2 м
  • пробное бурение – во всех случаях
  • гидроизоляция между оголовками свай и обвязочным брусом – 2 слоя гидростеклоизола
Силовой каркас
  • антисептирование – весь силовой каркас полностью, стропильная часть, системы наружной обрешетки, бруски пола
  • обвязка свай – составной брус 200*200 мм (4 скрепленных доски 50*200 мм) по периметру дома, внутри контура дома составной брус 150*200 мм (3 скрепленных доски 50*200 мм)
  • крепление обвязочного бруса к оголовкам свай – «глухарями» (через шайбы) во все заводские отверстия оголовков, на которые попадает брус
  • расположение балок пола 1 этажа – сверху обвязочного бруса
  • сечение стоек внешних стен дома – 50*150 мм
  • перекрестный каркас внешних стен дома – 50*100 мм горизонтально (с наружной стороны дома)
  • сечение стоек внутренних перегородок – 50*150 мм (несущих) и 50*100 мм (не несущих)
  • типичный шаг стоек стен – 640 мм (590 мм между стойками)
  • сечение балок пола 1 этажа – 50*200 мм
  • сечение балок пола межэтажного перекрытия – 100*200 мм (2 скрепленных доски 50*200 мм)
  • укосы – доска 50*150 мм, впиленная в стойки внешних и внутренних несущих стен под углом, близким к 45 градусам
  • впиленные ригели в верхней части щитов – на всех внешних и внутренних несущих стенах (кроме фронтонов 2 этажа)
  • верхняя горизонтальная перевязка щитов внешних и внутренних несущих стен – тройная (двойная «плашмя» + ригель «ребром»)
  • нижняя горизонтальная перевязка щитов всех внутренних несущих стен дома – двойная («плашмя»)
  • усиление всех оконных и дверных проемов – двойные боковые стойки, упор горизонтальных досок, хедер над проемом (если умещается по высоте)
  • применение конструктивного элемента «теплый угол» – все углы внешних стен дома
  • двойной коньковый брус – во всех двускатных крышах
  • материал каркаса дома – доска антисептированная полноразмерная 1 сорт (сосна, ель)
  • крепеж каркаса – оцинкованные гладкие гвозди
  • все укосы каркаса прибиваются к стойкам по 3 гвоздя 120 мм в каждую стойку
Утепление
  • плитный базальтовый утеплитель плотностью 50 кг/м3 – везде
  • утепление внешних стен – 150+50=200 мм
  • утепление потолков последнего этажа – 200 мм
  • утепление полов 1 этажа – 200+50=250 мм
  • звукоизоляция межэтажного перекрытия – 200+50=250 мм
  • звукоизоляция перегородок – 150 мм и 100 мм
Пленки
  • пароизоляция внешних стен, полов 1 этажа и потолка последнего этажа изнутри помещений – пленка "Изоспан D" с проклейкой стыков двухсторонним скотчем
  • ветроизоляция внешних стен – трехслойная пленка-мебрана "Изоспан AQ proff"
  • подкровельная пленка – трехслойная пленка-мебрана "Изоспан AQ proff" (мансардная крыша) или пленка "Ютафол Д 96" (холодный чердак)
Фасады
  • внешняя отделка стен – металлический сайдинг "Grand Line" "ЭкоБрус"/"Квадро брус" 0,45 PE моноцвет (цвет выбирает Заказчик из однотонных) горизонтально по вертикальным рейкам 25*100 мм (вентилируемый фасад) с шагом 400 мм (300 мм между рейками)
  • внешняя отделка наружных углов дома – металлический внешний угол 0,45 PE моноцвет (цвет выбирает Заказчик из однотонных)
  • внешняя отделка откосов окон – металлический околооконный профиль 0,45 PE моноцвет (цвет выбирает Заказчик из однотонных)
  • внешняя отделка лобовой доски – металлическая J-фаска 0,45 PE моноцвет (цвет выбирает Заказчик из однотонных)
  • декоративные деревянные «лучи» под коньком на каждом фронтоне фасадов – да
  • стальная оцинкованная мелкоячеистая сетка с нижнего торца пространства вентилируемого фасада – да
  • отделка цоколя – нет
Кровля
  • металлочерепица 0,5 мм "Grand Line Satin", профиль Classic (цвет выбирает Заказчик)
  • тип конька крыши – прямой (цвет выбирает Заказчик)
  • обрешетка крыши – доска 25*100 мм с шагом 350 мм (250 мм между досками)
  • контробрешетка крыши – доска 50*100 мм (мансардная крыша) или 25*100 мм (холодный чердак)
  • карнизы крыши – объемные вентилируемые
  • подшив карнизных свесов крыши – пластиковые софиты "Docke"/"Grand Line" с полной перфорацией, моноцвет (цвет выбирает Заказчик из однотонных)
  • вынос карнизных свесов крыши за пределы стен – 500 мм (в горизонтальной плоскости)
  • вытяжки из санузлов, из кухни и фановая вытяжка – пластиковые «грибки» (проходы через кровлю) + утепленная вентиляционная гофра в стенах
  • водостоки – пластиковые "Docke Standard" на металлических крюках (цвет выбирает Заказчик)
Внутренняя отделка
  • внутренняя отделка стен и потолков – нет
Полы
  • полы внутри дома – фанера ФК 15 мм по брускам 50*100 мм с шагом 380 мм (280 мм между брусками)
  • черновые полы (сплошной подшив по балкам пола 1 этажа снизу) – доска обрезная 25*150 мм, сверху трехслойная пленка-мебрана "Изоспан AQ proff"
Терраса
  • полы на террасах – строганная сухая доска 35*140 мм (сосна, ель) с зазором
  • перила на террасах – из строганной сухой доски 35*140 мм (сосна, ель; горизонтально, либо вертикально, либо крест-накрест, либо рисунком)
  • ступеньки с террас – из строганной сухой доски 45*190 мм (сосна, ель)
  • опорные столбы на террасах – вертикальный составной брус 150*150 мм (3 скрепленных доски 50*150 мм), отделанный вертикальной имитацией бруса 16*140 мм и деревянным уголком 50*50 мм
Окна
  • окна – пластиковые белые "Rehau Delight" (70 мм, 5 камер) с двухкамерным стеклопакетом (3 стекла, 40 мм, формула стеклопакета 4м1-14-4м1-14-4Ист) и с фурнитурой "Roto NX"
  • шпросы (8 мм, белые) внутри стеклопакета – да
  • энергосберегающий стеклопакет (i-стекло) – да
  • щелевое проветривание (микропроветривание) – да
  • москитные сетки – на всех открывающихся створках окон
  • ограничители открывания окон («крокодильчики») – на всех открывающихся створках окон
  • оконные ручки – "Rehau Idea"
  • оконные рамы «утапливаются» в оконные проемы, образуются откосы снаружи дома
  • отливы окон – металлические окрашенные (цвет выбирает Заказчик)
  • полное пропенивание оконных отливов – да
  • подоконники – нет
Лестница (кроме одноэтажных домов)
  • лестница межэтажная сухая из строганной сухой доски 45*190 мм (сосна, ель) на крепеже, с перилами – нет
  • лестница межэтажная клееная (лиственница) с балясинами, перилами и подступенками – нет
Двери
  • межкомнатные двери – нет
  • уличная дверь – металлическая российского производства утепленная с терморазрывом "Термаль" (цвет выбирает Заказчик)
Прочее
  • закладные (гильзы) под ввод воды и электричества в дом – на усмотрение Заказчика
  • предоставление бытовки (при необходимости) – БЕСПЛАТНО
  • транспортировка бытовки (манипулятором) – БЕСПЛАТНО до 150 км от МКАД
  • уборка в доме и на участке – включена
  • вывоз строительного мусора – включен в объеме 1 мусорного контейнера (8 м3)
Elite
Дом и с наружной, и с внутренней отделкой
  • сечение стоек внешних стен дома – 50*150 мм
  • обвязка свай – составной брус 200*200 мм
  • утепление внешних стен и потолков последнего этажа 200 мм
  • перекрестный каркас внешних стен дома – 50*100 мм
  • внешняя отделка стен – металлический сайдинг "Grand Line"
  • полы внутри дома – фанера ФК 15 мм
  • внутренняя отделка стен и потолков – имитация бруса 16*140 мм
  • межкомнатные двери – филенчатые из массива сосны
Фундамент
  • бетонные забивные сваи 150*150*3000 мм с оголовками 250*250 мм, монтаж установкой на гусеничном ходу, средний шаг 2 м
  • пробное бурение – во всех случаях
  • гидроизоляция между оголовками свай и обвязочным брусом – 2 слоя гидростеклоизола
Силовой каркас
  • антисептирование – весь силовой каркас полностью, стропильная часть, системы наружной обрешетки, бруски пола
  • обвязка свай – составной брус 200*200 мм (4 скрепленных доски 50*200 мм) по периметру дома, внутри контура дома составной брус 150*200 мм (3 скрепленных доски 50*200 мм)
  • крепление обвязочного бруса к оголовкам свай – «глухарями» (через шайбы) во все заводские отверстия оголовков, на которые попадает брус
  • расположение балок пола 1 этажа – сверху обвязочного бруса
  • сечение стоек внешних стен дома – 50*150 мм
  • перекрестный каркас внешних стен дома – 50*100 мм горизонтально (с наружной стороны дома)
  • сечение стоек внутренних перегородок – 50*150 мм (несущих) и 50*100 мм (не несущих)
  • типичный шаг стоек стен – 640 мм (590 мм между стойками)
  • сечение балок пола 1 этажа – 50*200 мм
  • сечение балок пола межэтажного перекрытия – 100*200 мм (2 скрепленных доски 50*200 мм)
  • укосы – доска 50*150 мм, впиленная в стойки внешних и внутренних несущих стен под углом, близким к 45 градусам
  • впиленные ригели в верхней части щитов – на всех внешних и внутренних несущих стенах (кроме фронтонов 2 этажа)
  • верхняя горизонтальная перевязка щитов внешних и внутренних несущих стен – тройная (двойная «плашмя» + ригель «ребром»)
  • нижняя горизонтальная перевязка щитов всех внутренних несущих стен дома – двойная («плашмя»)
  • усиление всех оконных и дверных проемов – двойные боковые стойки, упор горизонтальных досок, хедер над проемом (если умещается по высоте)
  • применение конструктивного элемента «теплый угол» – все углы внешних стен дома
  • двойной коньковый брус – во всех двускатных крышах
  • материал каркаса дома – доска антисептированная полноразмерная 1 сорт (сосна, ель)
  • крепеж каркаса – оцинкованные гладкие гвозди
  • все укосы каркаса прибиваются к стойкам по 3 гвоздя 120 мм в каждую стойку
Утепление
  • плитный базальтовый утеплитель плотностью 50 кг/м3 – везде
  • утепление внешних стен – 150+50=200 мм
  • утепление потолков последнего этажа – 200 мм
  • утепление полов 1 этажа – 200+50=250 мм
  • звукоизоляция межэтажного перекрытия – 200+50=250 мм
  • звукоизоляция перегородок – 150 мм и 100 мм
Пленки
  • пароизоляция внешних стен, полов 1 этажа и потолка последнего этажа изнутри помещений – пленка "Изоспан D" с проклейкой стыков двухсторонним скотчем
  • ветроизоляция внешних стен – трехслойная пленка-мебрана "Изоспан AQ proff"
  • подкровельная пленка – трехслойная пленка-мебрана "Изоспан AQ proff" (мансардная крыша) или пленка "Ютафол Д 96" (холодный чердак)
Фасады
  • внешняя отделка стен – металлический сайдинг "Grand Line" "ЭкоБрус"/"Квадро брус" 0,45 PE моноцвет (цвет выбирает Заказчик из однотонных) горизонтально по вертикальным рейкам 25*100 мм (вентилируемый фасад) с шагом 400 мм (300 мм между рейками)
  • внешняя отделка наружных углов дома – металлический внешний угол 0,45 PE моноцвет (цвет выбирает Заказчик из однотонных)
  • внешняя отделка откосов окон – металлический околооконный профиль 0,45 PE моноцвет (цвет выбирает Заказчик из однотонных)
  • внешняя отделка лобовой доски – металлическая J-фаска 0,45 PE моноцвет (цвет выбирает Заказчик из однотонных)
  • декоративные деревянные «лучи» под коньком на каждом фронтоне фасадов – да
  • стальная оцинкованная мелкоячеистая сетка с нижнего торца пространства вентилируемого фасада – да
  • отделка цоколя – нет
Кровля
  • металлочерепица 0,5 мм "Grand Line Satin", профиль Classic (цвет выбирает Заказчик)
  • тип конька крыши – прямой (цвет выбирает Заказчик)
  • обрешетка крыши – доска 25*100 мм с шагом 350 мм (250 мм между досками)
  • контробрешетка крыши – доска 50*100 мм (мансардная крыша) или 25*100 мм (холодный чердак)
  • карнизы крыши – объемные вентилируемые
  • подшив карнизных свесов крыши – пластиковые софиты "Docke"/"Grand Line" с полной перфорацией, моноцвет (цвет выбирает Заказчик из однотонных)
  • вынос карнизных свесов крыши за пределы стен – 500 мм (в горизонтальной плоскости)
  • вытяжки из санузлов, из кухни и фановая вытяжка – пластиковые «грибки» (проходы через кровлю) + утепленная вентиляционная гофра в стенах
  • водостоки – пластиковые "Docke Standard" на металлических крюках (цвет выбирает Заказчик)
Внутренняя отделка
  • внутренняя отделка стен и потолков – нет
Полы
  • полы внутри дома – фанера ФК 15 мм по брускам 50*100 мм с шагом 380 мм (280 мм между брусками)
  • черновые полы (сплошной подшив по балкам пола 1 этажа снизу) – доска обрезная 25*150 мм, сверху трехслойная пленка-мебрана "Изоспан AQ proff"
Терраса
  • полы на террасах – строганная сухая доска 35*140 мм (сосна, ель) с зазором
  • перила на террасах – из строганной сухой доски 35*140 мм (сосна, ель; горизонтально, либо вертикально, либо крест-накрест, либо рисунком)
  • ступеньки с террас – из строганной сухой доски 45*190 мм (сосна, ель)
  • опорные столбы на террасах – вертикальный составной брус 150*150 мм (3 скрепленных доски 50*150 мм), отделанный вертикальной имитацией бруса 16*140 мм и деревянным уголком 50*50 мм
Окна
  • окна – пластиковые белые "Rehau Delight" (70 мм, 5 камер) с двухкамерным стеклопакетом (3 стекла, 40 мм, формула стеклопакета 4м1-14-4м1-14-4Ист) и с фурнитурой "Roto NX"
  • шпросы (8 мм, белые) внутри стеклопакета – да
  • энергосберегающий стеклопакет (i-стекло) – да
  • щелевое проветривание (микропроветривание) – да
  • москитные сетки – на всех открывающихся створках окон
  • ограничители открывания окон («крокодильчики») – на всех открывающихся створках окон
  • оконные ручки – "Rehau Idea"
  • оконные рамы «утапливаются» в оконные проемы, образуются откосы снаружи дома
  • отливы окон – металлические окрашенные (цвет выбирает Заказчик)
  • полное пропенивание оконных отливов – да
  • подоконники – нет
Лестница (кроме одноэтажных домов)
  • лестница межэтажная сухая из строганной сухой доски 45*190 мм (сосна, ель) на крепеже, с перилами – нет
  • лестница межэтажная клееная (лиственница) с балясинами, перилами и подступенками – нет
Двери
  • межкомнатные двери – нет
  • уличная дверь – металлическая российского производства утепленная с терморазрывом "Термаль" (цвет выбирает Заказчик)
Прочее
  • закладные (гильзы) под ввод воды и электричества в дом – на усмотрение Заказчика
  • предоставление бытовки (при необходимости) – БЕСПЛАТНО
  • транспортировка бытовки (манипулятором) – БЕСПЛАТНО до 150 км от МКАД
  • уборка в доме и на участке – включена
  • вывоз строительного мусора – включен в объеме 1 мусорного контейнера (8 м3)
Platinum
Дом и с наружной, и с внутренней отделкой
  • сечение стоек внешних стен дома – 50*200 мм
  • обвязка свай – составной брус 200*200 мм
  • утепление внешних стен и потолков последнего этажа 250 мм
  • перекрестный каркас внешних стен дома – 50*100 мм
  • внешняя отделка стен – фиброцементный сайдинг "Decover"
  • полы внутри дома – фанера ФК 18 мм
  • внутренняя отделка стен и потолков – имитация бруса 16*140 мм
  • межкомнатные двери – филенчатые из массива сосны
Фундамент
  • бетонные забивные сваи 150*150*3000 мм с оголовками 250*250 мм, монтаж установкой на гусеничном ходу, средний шаг 2 м
  • пробное бурение – во всех случаях
  • гидроизоляция между оголовками свай и обвязочным брусом – 2 слоя гидростеклоизола
Силовой каркас
  • антисептирование – весь силовой каркас полностью, стропильная часть, системы наружной обрешетки, бруски пола
  • обвязка свай – составной брус 200*200 мм (4 скрепленных доски 50*200 мм) по периметру дома, внутри контура дома составной брус 150*200 мм (3 скрепленных доски 50*200 мм)
  • крепление обвязочного бруса к оголовкам свай – «глухарями» (через шайбы) во все заводские отверстия оголовков, на которые попадает брус
  • расположение балок пола 1 этажа – сверху обвязочного бруса
  • сечение стоек внешних стен дома – 50*150 мм
  • перекрестный каркас внешних стен дома – 50*100 мм горизонтально (с наружной стороны дома)
  • сечение стоек внутренних перегородок – 50*150 мм (несущих) и 50*100 мм (не несущих)
  • типичный шаг стоек стен – 640 мм (590 мм между стойками)
  • сечение балок пола 1 этажа – 50*200 мм
  • сечение балок пола межэтажного перекрытия – 100*200 мм (2 скрепленных доски 50*200 мм)
  • укосы – доска 50*150 мм, впиленная в стойки внешних и внутренних несущих стен под углом, близким к 45 градусам
  • впиленные ригели в верхней части щитов – на всех внешних и внутренних несущих стенах (кроме фронтонов 2 этажа)
  • верхняя горизонтальная перевязка щитов внешних и внутренних несущих стен – тройная (двойная «плашмя» + ригель «ребром»)
  • нижняя горизонтальная перевязка щитов всех внутренних несущих стен дома – двойная («плашмя»)
  • усиление всех оконных и дверных проемов – двойные боковые стойки, упор горизонтальных досок, хедер над проемом (если умещается по высоте)
  • применение конструктивного элемента «теплый угол» – все углы внешних стен дома
  • двойной коньковый брус – во всех двускатных крышах
  • материал каркаса дома – доска антисептированная полноразмерная 1 сорт (сосна, ель)
  • крепеж каркаса – оцинкованные гладкие гвозди
  • все укосы каркаса прибиваются к стойкам по 3 гвоздя 120 мм в каждую стойку
Утепление
  • плитный базальтовый утеплитель плотностью 50 кг/м3 – везде
  • утепление внешних стен – 150+50=200 мм
  • утепление потолков последнего этажа – 200 мм
  • утепление полов 1 этажа – 200+50=250 мм
  • звукоизоляция межэтажного перекрытия – 200+50=250 мм
  • звукоизоляция перегородок – 150 мм и 100 мм
Пленки
  • пароизоляция внешних стен, полов 1 этажа и потолка последнего этажа изнутри помещений – пленка "Изоспан D" с проклейкой стыков двухсторонним скотчем
  • ветроизоляция внешних стен – трехслойная пленка-мебрана "Изоспан AQ proff"
  • подкровельная пленка – трехслойная пленка-мебрана "Изоспан AQ proff" (мансардная крыша) или пленка "Ютафол Д 96" (холодный чердак)
Фасады
  • внешняя отделка стен – металлический сайдинг "Grand Line" "ЭкоБрус"/"Квадро брус" 0,45 PE моноцвет (цвет выбирает Заказчик из однотонных) горизонтально по вертикальным рейкам 25*100 мм (вентилируемый фасад) с шагом 400 мм (300 мм между рейками)
  • внешняя отделка наружных углов дома – металлический внешний угол 0,45 PE моноцвет (цвет выбирает Заказчик из однотонных)
  • внешняя отделка откосов окон – металлический околооконный профиль 0,45 PE моноцвет (цвет выбирает Заказчик из однотонных)
  • внешняя отделка лобовой доски – металлическая J-фаска 0,45 PE моноцвет (цвет выбирает Заказчик из однотонных)
  • декоративные деревянные «лучи» под коньком на каждом фронтоне фасадов – да
  • стальная оцинкованная мелкоячеистая сетка с нижнего торца пространства вентилируемого фасада – да
  • отделка цоколя – нет
Кровля
  • металлочерепица 0,5 мм "Grand Line Satin", профиль Classic (цвет выбирает Заказчик)
  • тип конька крыши – прямой (цвет выбирает Заказчик)
  • обрешетка крыши – доска 25*100 мм с шагом 350 мм (250 мм между досками)
  • контробрешетка крыши – доска 50*100 мм (мансардная крыша) или 25*100 мм (холодный чердак)
  • карнизы крыши – объемные вентилируемые
  • подшив карнизных свесов крыши – пластиковые софиты "Docke"/"Grand Line" с полной перфорацией, моноцвет (цвет выбирает Заказчик из однотонных)
  • вынос карнизных свесов крыши за пределы стен – 500 мм (в горизонтальной плоскости)
  • вытяжки из санузлов, из кухни и фановая вытяжка – пластиковые «грибки» (проходы через кровлю) + утепленная вентиляционная гофра в стенах
  • водостоки – пластиковые "Docke Standard" на металлических крюках (цвет выбирает Заказчик)
Внутренняя отделка
  • внутренняя отделка стен и потолков – нет
Полы
  • полы внутри дома – фанера ФК 15 мм по брускам 50*100 мм с шагом 380 мм (280 мм между брусками)
  • черновые полы (сплошной подшив по балкам пола 1 этажа снизу) – доска обрезная 25*150 мм, сверху трехслойная пленка-мебрана "Изоспан AQ proff"
Терраса
  • полы на террасах – строганная сухая доска 35*140 мм (сосна, ель) с зазором
  • перила на террасах – из строганной сухой доски 35*140 мм (сосна, ель; горизонтально, либо вертикально, либо крест-накрест, либо рисунком)
  • ступеньки с террас – из строганной сухой доски 45*190 мм (сосна, ель)
  • опорные столбы на террасах – вертикальный составной брус 150*150 мм (3 скрепленных доски 50*150 мм), отделанный вертикальной имитацией бруса 16*140 мм и деревянным уголком 50*50 мм
Окна
  • окна – пластиковые белые "Rehau Delight" (70 мм, 5 камер) с двухкамерным стеклопакетом (3 стекла, 40 мм, формула стеклопакета 4м1-14-4м1-14-4Ист) и с фурнитурой "Roto NX"
  • шпросы (8 мм, белые) внутри стеклопакета – да
  • энергосберегающий стеклопакет (i-стекло) – да
  • щелевое проветривание (микропроветривание) – да
  • москитные сетки – на всех открывающихся створках окон
  • ограничители открывания окон («крокодильчики») – на всех открывающихся створках окон
  • оконные ручки – "Rehau Idea"
  • оконные рамы «утапливаются» в оконные проемы, образуются откосы снаружи дома
  • отливы окон – металлические окрашенные (цвет выбирает Заказчик)
  • полное пропенивание оконных отливов – да
  • подоконники – нет
Лестница (кроме одноэтажных домов)
  • лестница межэтажная сухая из строганной сухой доски 45*190 мм (сосна, ель) на крепеже, с перилами – нет
  • лестница межэтажная клееная (лиственница) с балясинами, перилами и подступенками – нет
Двери
  • межкомнатные двери – нет
  • уличная дверь – металлическая российского производства утепленная с терморазрывом "Термаль" (цвет выбирает Заказчик)
Прочее
  • закладные (гильзы) под ввод воды и электричества в дом – на усмотрение Заказчика
  • предоставление бытовки (при необходимости) – БЕСПЛАТНО
  • транспортировка бытовки (манипулятором) – БЕСПЛАТНО до 150 км от МКАД
  • уборка в доме и на участке – включена
  • вывоз строительного мусора – включен в объеме 1 мусорного контейнера (8 м3)
Есть вопросы или предложения?
Напишите нам!
Контакты
Москва
  • ул.4-я Мякининская, д.25
  • Метро Мякинино

  • +7 (499) 340-6-777
  • 10:00 - 19:00
  • info@holzbinder.ru
Санкт-Петербург
  • ул. Торфяная дорога д.17
  • Метро Старая Деревня
  • +7 (812) 628-6-777
  • 11:00 - 18:00